Espere un momento

Ver
Inicio / / Venta 11 Oficinas (2° Piso) Edificio España Villota esquina Peña
1 1 1 1 1 1 1 1

Venta 11 Oficinas (2° Piso) Edificio España Villota esquina Peña

PDF

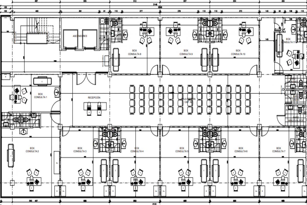
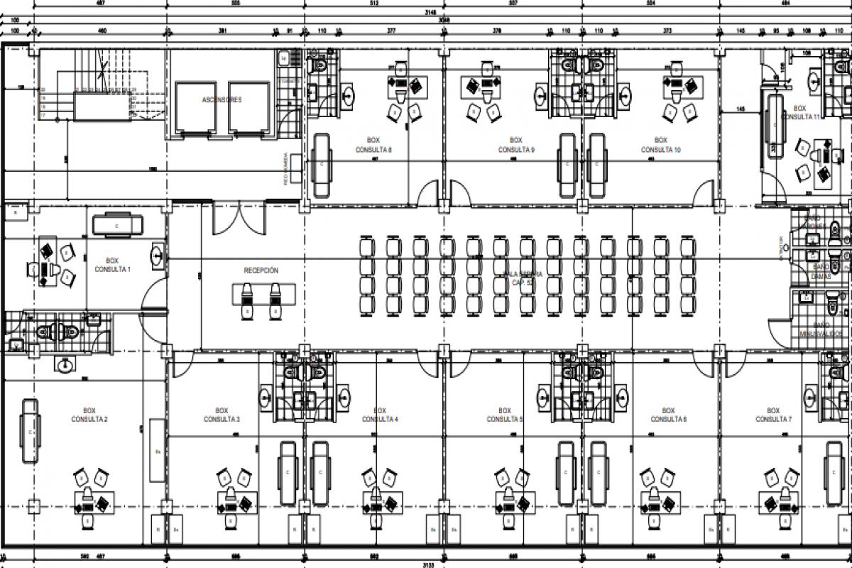
Edificio de oficinas con la más alta calidad constructiva. A sólo pasos de la plaza de armas, centros comerciales, colegios y bancos. Aspectos Generales de venta: 2° piso 11 oficinas tipo Box, sala de espera. 450 m2 y estacionamiento de 600 m2. Recomendada para profesionales del área de salud. Ideal para inversionistas que quieran una alternativa de compra, potenciales arriendos.

Precio: 18 UF - $715,725



Ubicación: Villota 505, Curicó

Ver Ubicación en mapa
Características Interior
Características Externas
Solicitar
Volver
Volver